HOME
PROJECTS
ABOUT US
CONTACT US
HOME
PROJECTS
ABOUT US
CONTACT US
FRIEND
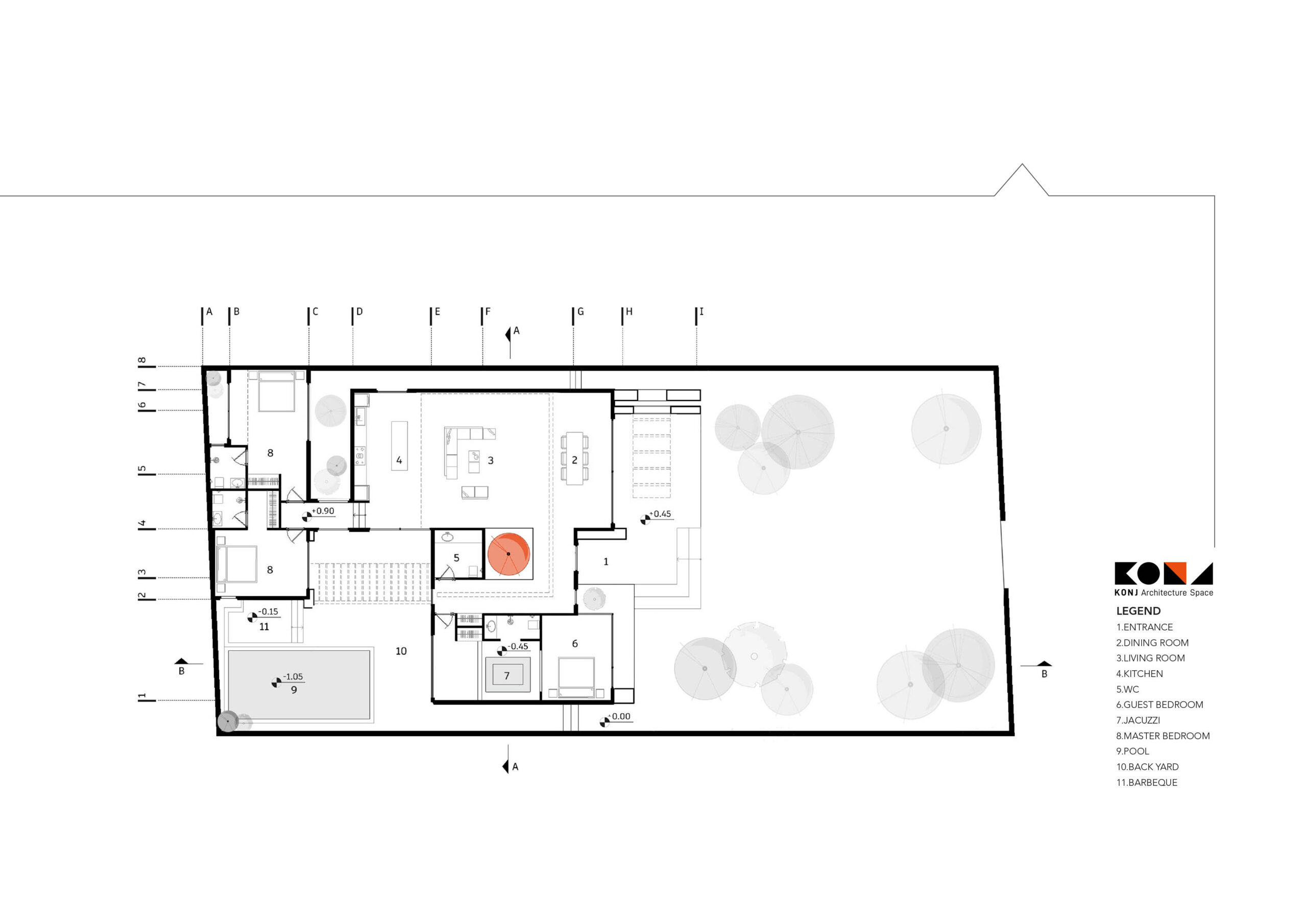
YEAR
2023
TYPE
VILLA
LOCATION
SHAHNAME
CLIENT
MR.SADEGHI,TAVASOLI
STATUS
COMPLETED
STATE AREA
600m2